Toll House Mead, Mosborough, S20

£390,000
Sold STC
4 Bedrooms
2 Bathrooms
2 Receptions
Tenure Leasehold
Council Tax Band - D
Full Details

Full Details

This impressive four bedroom detached house presents an exceptional opportunity for families seeking spacious and versatile living accommodation in a highly regarded residential location.

The property is beautifully presented throughout and features a welcoming entrance hall that leads to a generously proportioned lounge, ideal for both relaxing and entertaining.

A separate dining room offers ample space for formal meals or family gatherings, while the well-appointed kitchen and breakfast room is fitted with a range of contemporary units and integrated appliances, providing a stylish and practical environment for every-day living.

Adjacent to the kitchen, a dedicated utility room offers additional storage and laundry facilities, enhancing the convenience of the home.

Upstairs, the main bedroom benefits from its own en-suite shower room, creating a private retreat for the homeowners, while three further bedrooms provide comfortable accommodation for family members or guests.

The recently refurbished family bathroom is finished to a high standard, featuring modern fittings and quality tiling.

The property also boasts a practical integral single garage, which is ideal for secure parking or additional storage, and a double driveway that provides off-road parking for multiple vehicles.

With its thoughtfully designed layout and high-quality finishes, this home is perfectly suited to modern family life. The combination of spacious reception rooms, a contemporary kitchen, practical utility space and well-proportioned bedrooms ensures that every aspect of daily living is catered for. The property’s location places it within easy reach of local amenities, reputable schools and excellent transport links, making it an ideal choice for those seeking both comfort and convenience. Early viewing is highly recommended to fully appreciate the quality and space on offer within this outstanding four bedroom detached residence.

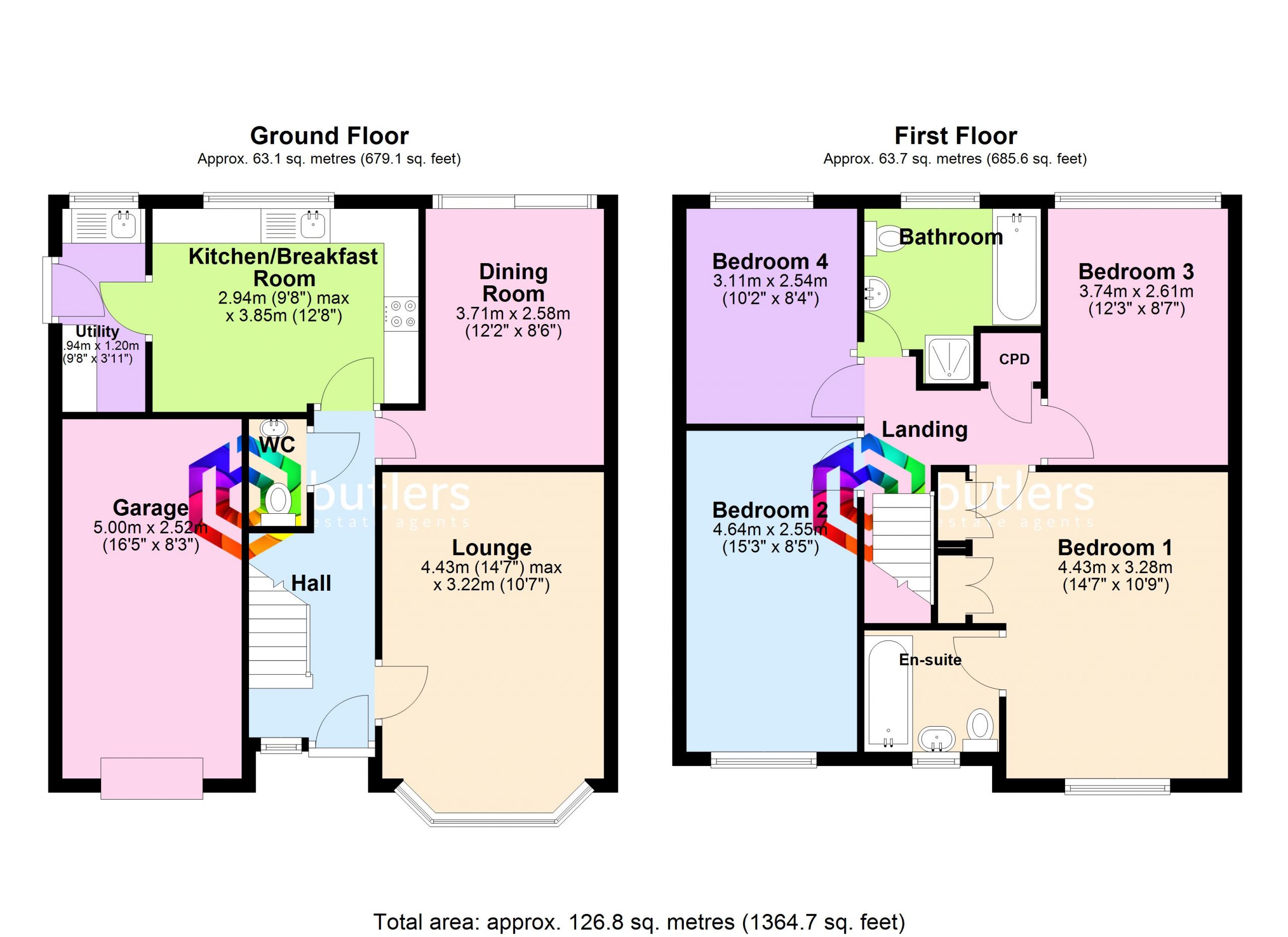
Hall
The front door leads you into the Hall which has plenty of space for coats and boots etc. There is access to the Lounge, Dining Room, Kitchen and Wc.

Downstairs WC
The downstairs WC has a white WC and a white wash hand basin on a pedestal.

Lounge 14' 6" x 10' 7" (4.43m x 3.22m)
The lounge has a beautiful bay window to the front and a gas fire inset into a marble hearth and upright with a wooden surround. A lovely room to relax in.

Dining Room 12' 2" x 8' 6" (3.71m x 2.58m)
A separate dining room to the rear with a patio sliding door providing access to the rear garden patio areas.

Kitchen / Breakfast Room 9' 8" x 12' 8" (2.94m x 3.85m)
A great sized kitchen/breakfast room with a range of wall and floor mounted beech wooden units with contrasting worksurfaces. There is a single stainless steel electric oven, gas hob and extractor above, along with a fully integrated dishwasher. A large rear facing window and space for a dining table and chair set make this space ideal for families and entertaining alike.

Utility Room 9' 8" x 3' 11" (2.94m x 1.20m)
The Utility room is accessed from the kitchen and offers a sink area with a window above and plumbing for a washing machine below. A further work top area provides useable space and storage. A door leads out to the side of the house.

Landing
Providing access to all bedrooms and the bathroom. There is a useful storage cupboard.

Bedroom One 14' 6" x 10' 9" (4.43m x 3.28m)
A generous main bedroom to the front of the house with full-height fitted wardrobes to one wall. There is access to the En-Suite and plenty of room to unwind.

En-Suite
This En-Suite has a white bath, white wash hand basin on a pedestal and and a White WC. There is a window to the front.

Bedroom Two 15' 3" x 8' 4" (4.64m x 2.55m)
Another great size double bedroom to the front of the house.

Bedroom Three 12' 3" x 8' 7" (3.74m x 2.61m)
This double bedroom has a rear facing window.

Bedroom Four 10' 2" x 8' 4" (3.11m x 2.54m)
Currently used as an office this double bedroom is located at the rear of the house.

Bathroom
Recently upgraded into modern greys and whites the room has a shower cubicle with a glass door and a thermostatic shower control, a white bath, white wash hand basin on a pedestal and a white WC. Everything required for family living.

Property Features

Property Features

  • FOUR BEDROOM DETACHED HOUSE
  • SEPARATE DINING ROOM
  • KITCHEN / BREAKFAST ROOM
  • UTILITY ROOM
  • EN-SUITE TO MAIN BEDROOM
  • REFURBISHED BATHROOM
  • INTEGRAL SINGLE GARAGE
  • DOUBLE DRIVEWAY
  • ENCLOSED REAR GARDEN WITH DECKED AREA AND FURTHER PATIO AREAS
  • Make Enquiry
  • Floorplan
  • Floorplan
  • Floorplan
  • Floorplan
  • Virtual Tour
  • Utilities & More
  • Send To Friend
Location